Zentral gelegenes Zweifamilienhaus mit viel Potenzial, 6 Garagen und Halle - IS-Letmathe

Auf einem ca. 965 m² großen Grundstück steht, zurückversetzt von einer ruhigen Seitenstraße, dieses zum Verkauf stehende Zweifamilienhaus. Die Immobilie bietet vielseitige Nutzungsmöglichkeiten und bietet insgesamt ca. 357 m² Wohn-/ [...]

 
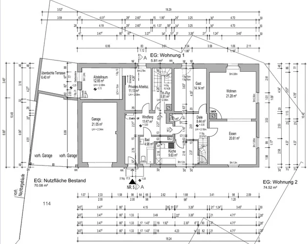
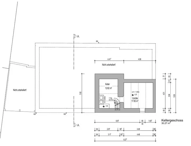
Frontansicht IFrontansicht IIÜberdachte TerrasseRückseitiger GartenHauseingangsflurEingangsbereich (WE 1)Wohnungsdiele (WE 1)1Essbereich (WE 1)Küche (WE 1)Tageslichtbad (WE1)1. Schlafzimmer (WE 1)2. Schlafzimmer (WE 1)Wohnzimmer (WE 1)Wohnzimmer (WE 1)Dachloggia (WE 1)Dachloggia (WE 1)Wohnungsdiele (WE 2)Küche (WE 2)Zugang zum Teilkeller (WE 2)Wohn-Essbereich (WE 2)Wohnbereich (WE 2)Wohnbereich (WE 2)Schlafzimmer mit Gartenzugang (WE 2)Wohnungsdiele OG (WE 2)Tageslichtbad im OG (WE 1)1. Schlafzimmer im OG (WE 2)2. Schlafzimmer im OG (WE 2)3. Schlafzimmer im OG (WE 2)Separates ArbeitszimmerSeparates TageslichtbadWeiterer separater RaumGrundriss EGGrundriss OGGrundriss DGGrundriss KG

Anfrage senden