Verkehrsgünstig gelegene, vielseitig nutzbare Bürofläche in Werl

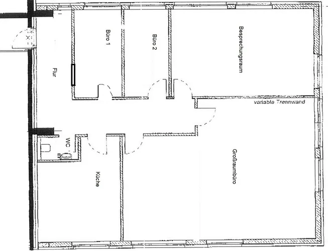
Das gepflegte Objekt bietet eine Gesamtfläche von etwa 232 m². Die Fläche kann als Büro, Praxis oder Ausstellungsfläche genutzt werden. Die Fläche teilt sich auf in ein Großraumbüro das durch [...]

 

Anfrage senden