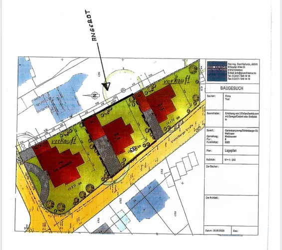
Neubauvorhaben Mettmann - Metzkausen 1 Familienhaus / Villa

Bauvorhaben: Hier entstehen in individueller Planung ein Einfamilienhaus mit ca. 150 - 200 m² Wohnfläche in gehobener Bauausführung. Der Interessent stimmt mit dem erfahrenen Architekten seine Wunschplanung ab. Bei dem namenhaften [...]

 
StraßenansichtLageplan

Anfrage senden