NEU: Großes 3-Familienhaus, Nebengebäude, Garagen in beliebter Schlebuscher Lage

Willkommen in Ihrem neuen Zuhause mit vielfältigen Möglichkeiten! Dieses freistehende Dreifamilienhaus aus dem Baujahr 1938 vereint Großzügigkeit, Charme und enormes Potenzial. Ob als Mehrgenerationenhaus oder zur Kombination von Wohnen und [...]

 
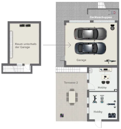
GesamtansichtWohn- / Esszimmer im EGKüche im EGSchlafen im EGDuschbad im EGSchlafen im OGKind / Arbeiten im OGZimmer mit Sauna im OGDuschbad im OGWohnzimmer im DGKüche / Essen / Bad im DGNebengebäudeStraßenansichtGrundriss ErdgeschossGrundriss ObergeschossGrundriss DachgeschossGrundriss SpeicherGrundriss KellergeschossGrundriss Nebengebäude

Anfrage senden