Helle Dachgeschosswohnung mit Wohlfühlfaktor – 3 Zimmer & Balkon in ruhiger Lage

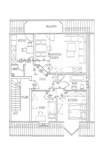
Diese großzügig geschnittene Dachgeschosswohnung vereint Licht, Raum und Funktionalität auf rund 62 m² – ideal für Paare, kleine Familien oder Kapitalanleger, die nach einer gepflegten und gut durchdachten Immobilie suchen. Zwei Schlafzimmer [...]

 
Hausansicht2 DieleBadezimmerDachgeschossLageplan

Anfrage senden