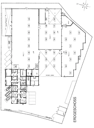
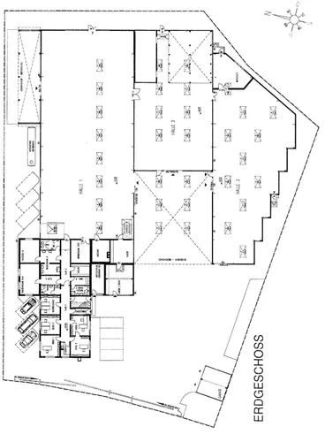
Hallenfläche mit Verwaltungsgebäude

Das Objekt wurde auf einem 4.721 m² großen Erbpachtgrundstück erbaut. Große Rolltore ermöglichen das bequeme Bestücken der Lager- und Produktionsflächen, welche sich über 1.868 m² erstreckt. Die Fläche ist aufgeteilt [...]

 
LuftbildBürogebäudeGarage/HofansichtGroße HalleGroße HalleMittlere HalleÜberdachte AnlieferungÜberdachte AnlieferungAußenlagerElektroverteilung HalleHeizlüfter HalleHeizungsverteilerErdgeschossObergeschossWasserverteilungHeizungsanlageHeizungsanlageHalle leerMittlere Halle leerRechte Halle leerBüroBüroBüroSanitärräume

Anfrage senden