Einfamilienhaus in begehrter Wohnlage von Kettwig!

Das vollunterkellerte, freistehende Haus präsentiert sich auf einem großzügigen, 1.101 m² großen Grundstück in begehrter Südwestausrichtung und bietet vielfältige Nutzungsmöglichkeiten für Familien sowie Bauherren mit individuellen Gestaltungswünschen. Der liebevoll angelegte, [...]

 
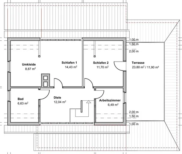
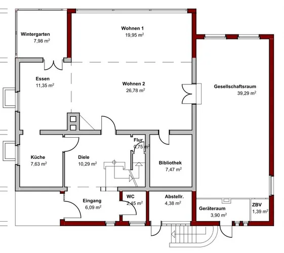
Wintergarten mit Blick ins GrüneAnsicht StraßenseiteAnsicht GartenseiteSonnenterrasseBlick in den Gartenvielfältiger Pflanzenbestand......mit toller Farbenprachtgemütlicher SitzplatzGaragegroßzügiger WohnbereichEssbereich mit offenem Kamingroßes TafelzimmerEinbaukücheEingangsbereichTreppenhausSchlafzimmer......mit Ankleidebereichzweites Schlafzimmer......mit Zugang zur DachterrasseArbeitszimmer mit Einbautenneuwertiges BadezimmerGrundriss KellergeschossGrundriss ErdgeschossGrundriss Dachgeschoss

Anfrage senden