Eigentumswohnung Erdgeschoss mit Balkon, Garage und Aufzug

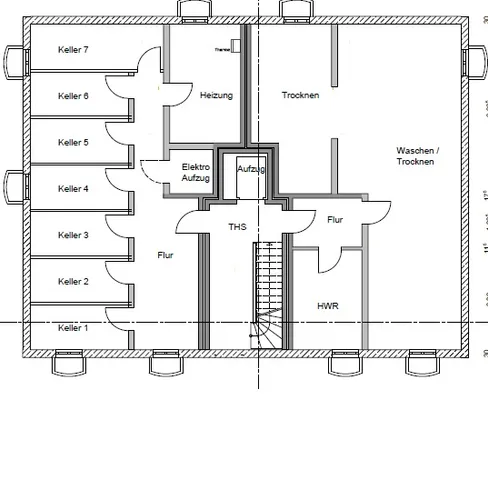
Gebaut wird hier ein 6 Familienhaus mit Vollkeller und 6 Garagen. Die zwei Wohnungen im EG sind mit je 84,10m², die beiden Wohnungen im ersten OG sind mit je ca. [...]

 
Ansicht 1Ansicht 2Erdgeschoss und GrundstückErdgeschossObergeschossDachgeschossKellergeschoss

Anfrage senden