Objektdaten für Objekt-Nr 20054-3031 | |||
---|---|---|---|
Miete zzgl. NK | 580,00 EUR | Kaution | 1.160,00 EUR |
Nebenkosten | 190,00 EUR | Wohnfläche | 72 m² |
Anzahl Etagen | 2 | Anzahl Stellplätze | 1 |
Anzahl Zimmer | 3 | Baujahr | 1999 |
Befeuerungsart | Gas | Energieausweis Ausstellungsdatum | 2018-09-12 |
Energieausweis Baujahr | 1999 | Energieausweistyp | Verbrauch |
Energieausweis gültig bis | 12.09.2028 | Energieausweis | 2014 |
Energieausweis Primärenergieträger | Gas | Endenergieverbrauch [kWh/(m²*a)] | 92 |
Energieeffizienzklasse | C | Lage im Objekt (Etage) | 2 |
Stellplätze | 1 | Stellplatzart | Freiplatz |
verfügbar ab | nach Vereinbarung | Zustand | gepflegt |
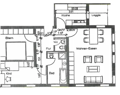
Die Wohnung befindet sich im 1. Obergeschoss eines gepflegten Mehrfamilienhauses im Herzen der Stadt Werl.
Wir bieten Ihnen eine helle und ansprechende 3-Zimmer-Wohnung, die sofort zum Wohlfühlen einlädt.
Herzstück ist das helle Wohn-Esszimmer, das mit modernem Laminat ausgelegt ist und viel Raum für Gestaltung bietet.
Die Wohnung verfügt über ein Schlafzimmer sowie ein weiteres Kinder- oder Arbeitszimmer.
Das Badezimmer lässt keine Wünsche offen: Es ist mit einer Dusche und einer Badewanne ausgestattet und besitzt zudem ein praktisches Fenster für optimale Belüftung.Ein großer Vorteil ist der zur Wohnung gehörende Stellplatz in der Tiefgarage, der Ihnen die tägliche Parkplatzsuche erspart.
Exposé
Wir bitten sich bei Interesse mit einer s c h r i f t l i c h e n Anfrage über unsere Homepage oder das Internetportal an uns zu wenden. Wir senden Ihnen dann umgehend ein Exposé per Email zu. Darin enthalten sind die Anschrift der Immobilie und Innenfotos.
Wir bitten Sie, sich anhand dieser Möglichkeit einen ersten Eindruck zu verschaffen. Bei näherem Interesse zeigen wir Ihnen die Immobilie gerne bei einer persönlichen Besichtigung.